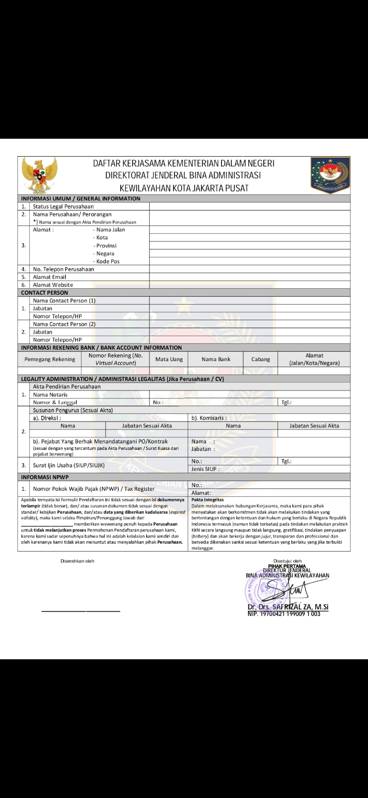
Jakarta, Barometer99.com – Kementerian Dalam Negeri (Kemendagri) menegaskan bahwa surat daftar kerja sama berkop Direktorat Jenderal (Ditjen) Bina Administrasi Kewilayahan (Adwil) yang beredar di dunia maya adalah palsu dan menyesatkan. Surat tersebut bukan dokumen resmi yang diterbitkan oleh Kemendagri.
“Kami pastikan surat itu palsu dan tidak berasal dari Kemendagri,” tegas Kepala Pusat Penerangan (Kapuspen) Kemendagri Benni Irwan dalam keterangan persnya di Jakarta, Rabu (29/10/2025).
Benni menegaskan, secara tata naskah dan format, surat yang beredar jelas berbeda dari ketentuan resmi yang berlaku di lingkungan Kemendagri.
“Dari sisi tata naskah, surat tersebut tidak sesuai dengan standar administrasi surat-menyurat Kemendagri. Jadi, sekali lagi kami tegaskan surat itu palsu,” kata Benni.
Lebih jauh, ia menjelaskan bahwa setiap mekanisme kerja sama dengan Kemendagri dikoordinasikan melalui unit kerja khusus di bawah Sekretariat Jenderal, yakni Pusat Fasilitasi Kerja Sama (Fasker).
Untuk itu, ia meminta masyarakat agar tidak mudah percaya terhadap dokumen, surat, atau informasi apa pun yang mengatasnamakan Kemendagri tanpa verifikasi dari kanal resmi Kemendagri.
“Kami mengimbau masyarakat untuk selalu melakukan verifikasi terhadap setiap informasi yang mengatasnamakan Kemendagri. Bila ragu, silakan konfirmasi langsung melalui situs atau kanal resmi Kemendagri,” tambahnya.
Benni menambahkan, Kemendagri berkomitmen menjalankan prinsip transparansi dan akuntabilitas dalam setiap kegiatan dan program pemerintahan. Ia juga mengingatkan bahwa penyebaran berita bohong atau hoaks dapat dikenai sanksi hukum sesuai dengan ketentuan perundang-undangan yang berlaku.
Puspen Kemendagri

 
							


















